| Наименование |
Кол. |
Масса ед, кг |
| Ограждение лестничного марша ОМ-1.2 |
2 |
24.27 |
| Отвод 90-1- 42.4х2.6 С245 L=75 |
1 |
0.20 |
| Труба 32х3.2 С245 L=1866 |
1 |
5.77 |
| Квадрат 20 С245 L=1029 |
3 |
3.24 |
| Квадрат 12 С245 L=1633 |
2 |
1.85 |
| Квадрат 12 С245 L=539 |
8 |
0.61 |
|
| Переходной элемент ПЭ-2.1 |
6 |
0.56 |
| Отвод 90-1- 42.4х2.6 С245 L=75 |
2 |
0.20 |
| Труба 32х3.2 С245 L=50* |
1 |
0.16 |
|
| Ограждение лестничного марша ОМ-1.1 |
2 |
40.83 |
| Труба 32х3.2 С245 L=3062 |
1 |
9.47 |
| Квадрат 20 С245 L=1029 |
5 |
3.24 |
| Квадрат 12 С245 L=2923 |
2 |
331 |
| Квадрат 12 С245 L=539 |
14 |
0.61 |
|
| Отвод 90-1- 42.4×2.6 С245 L=75 |
1 |
0.20 |
| Квадрат 12 С245 L=32 |
2 |
0.04 |
|
| Ограждение лестничного марша ОМ-1.3 |
4 |
40.56 |
| Труба 32х3.2 С245 L=3026 |
1 |
936 |
| Квадрат 20 С245 L=1025 |
5 |
3.22 |
| Квадрат 12 С245 L=2901 |
2 |
3.28 |
| Квадрат 12 С245 L=539 |
14 |
0.61 |
|
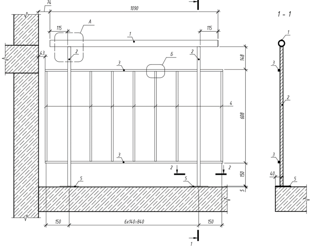
| Ограждение лестничной площадки ОП-1.1 |
6 |
17.27 |
| Труба 32х3.2 С245 L=1090 |
1 |
337 |
| Квадрат 20 С245 L=906 |
2 |
2.85 |
| Квадрат 12 С245 L=1152 |
2 |
131 |
| Квадрат 12 С245 L=584 |
7 |
0.66 |
| — 120х5 С245 L=100 |
2 |
0.48 |
| Анкер МКТ BZ 8-10-21/75 |
4 |
|